赤羽橋駅 徒歩6分/麻布十番駅・神谷町駅 徒歩9分

キャンペーンバナー キャンペーンバナー

concept

Renovating your

work style

東京タワーの真下に位置するビル1棟をリノベーション。1Fを飲食ショップ・ラウンジ、2Fから10Fまでがオフィスやミーティングルーム、そしてルーフトップを設置した、専有部を最大限に活かせる多彩な共用施設。

OFFICE
for RENT

スケルトンにした天井と床の内装でシンプルでクリエイティブなオフィスプラン。インターネット事前設置済みですぐに事業が始められるのでスタートアップや、支店、バックオフィスなどにもおすすめです。

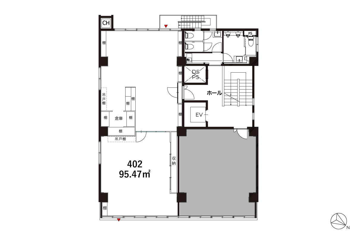
Office #402

95.47 / 28.87
  • OFFICE 803

  • 8F FLOOR PLAN

  • ※一部棚/収納付き。デスクや椅子などの家具/備品はついておりません。

  • ※一部棚/収納付き。デスクや椅子などの家具/備品はついておりません。

  • ※一部棚/収納付き。デスクや椅子などの家具/備品はついておりません。

  • ※一部棚/収納付き。デスクや椅子などの家具/備品はついておりません。

CAMPAIGN!!
11月契約限定で保証金無料
賃料:580,000円(税込638,000円)
共益費:50,000円 (税込55,000円)
諸経費:40,000円 (税込44,000円)
入居時期:即日

| 仕上げ

壁:塗装/天井:躯体現し/床:コンクリート現し(一部フローリング)

| 設備

エアコン
ライティングレール
ウッドブラインド
インターネット引込済み
専有部入口セキュリティ
カメラ付インターフォン
Show More +

Office #1004

21.5 / 6.5
  • OFFICE 1004

  • 10F FLOOR PLAN

  • OFFICE IMAGE

  • MODEL ROOM※デスクや椅子などの家具/備品はついておりません。

CAMPAIGN!!
11月契約限定で保証金無料
賃料:145,800円(税込160,380円)
共益費:13,000円 (税込14,300円)
諸経費:22,200円 (税込24,420円)
入居時期:即日

| 仕上げ

壁:塗装/天井:躯体現し/床:コンクリート現し

| 設備

エアコン
ライティングレール
ウッドブラインド
インターネット引込済み
専有部入口セキュリティ
カメラ付インターフォン
Show More +

Office #803

17.32 / 5.23
  • OFFICE 803

  • 8F FLOOR PLAN

  • OFFICE IMAGE|家具はついておりません

  • OFFICE IMAGE

CAMPAIGN!!
11月契約限定で保証金無料
賃料:133,000円(税込146,300円)
共益費:10,000円(税込11,000円)
諸経費:18,200円(税込20,020円)
入居時期:即日

| 仕上げ

壁:塗装/天井:躯体現し/床:コンクリート現し(一部フローリング)

| 設備

エアコン
ライティングレール
ウッドブラインド
インターネット引込済み
専有部入口セキュリティ
カメラ付インターフォン
Show More +

public & service

THE WORKERS & COのロビーラウンジ

LOUNGE

お客様との打ち合わせや商談などワークシーンでの利用をはじめ、入居者同士の憩いの場としてもご利用頂けます。(Wi-Fi完備)

THE WORKERS & COのレストラン

RESTAURANT

Zero Waste Townとして有名な徳島の上勝のマイクロ・ブリュワリー「RISE & WIN Brewing Co. BBQ & General Store 」が東京に初出店!ワンプレートメニューやワンハンドアイテムなどのテイクアウトメニューやスペシャリティーコーヒーを中心とした喫茶メニューも登場。リフレッシュの空間としてご利用頂けます。

THE WORKERS & COの会議室

MEETING ROOM

6Fと9Fのミーティングルームは、プレゼンテーションや打ち合わせにご利用頂けます。ホワイトボード完備 定員:8名 600円(税込660円)/ 1h(Wi-Fi完備)

THE WORKERS & COのルーフトップ

ROOFTOP

東京タワーを見上げられるルーフトップ。Wi-Fi完備で作業スペースやリフレッシュスペースとしてご利用頂けます。 階段踊り場には東京タワーにちなんで世界各国のタワーをイラストレーターのSHO MIYATAが描きました。

Others

Wi-Fi 駐輪場 シャワー イベントスペース

outline

[事業主・貸主]
株式会社リアルゲイト
[住所]
東京都港区東麻布1-4-2
[交通]
都営地下鉄大江戸線「赤羽橋駅」徒歩6分、東京メトロ日比谷線「神谷町駅」9分、東京メトロ南北線、都営地下鉄大江戸線「麻布十番駅」徒歩9分、都営地下鉄三田線「芝公園駅」徒歩14分
[用途]
店舗・事務所
[構造]
鉄骨鉄筋コンクリート造 地上10階地下1階建
[延床面積]
2,039.3㎡(616.8坪)
[区画面積]
最少面積17.0㎡~最大面積139.59㎡ / 1 Floor
[竣工年]
1966年7月
[リノベーション竣工年]
2015年11月

access

〒106-0044 東京都港区東麻布1-4-2
都営大江戸線「赤羽橋駅」赤羽橋口 徒歩6分
東京メトロ南北線「麻布十番駅」駅 6番出口 徒歩9分
東京メトロ日比谷線「神谷町駅」2番出口 徒歩9分

Contact us!

内覧予約・お問い合わせは、フォーム登録をお願い致します。
お電話でのお問い合わせは、下記までご連絡ください。
03-6804-3944(土日祝日を除く10:00〜19:00)

project members

Direction / Operation
REALGATEのロゴ
Produce
TRANSITのロゴ
Interior
LINE INC.のロゴ
Logo Design
LOVEのロゴ
Illustration
Sho Miyataのロゴ
Design Development
Osakaのロゴ

SERVICE

ORDERMADE TOKYO ORDERMADE TOKYO キャンプサイト付きワーケーション施設neuRoom キャンプサイト付きワーケーション施設neuRoom オフィス移転サポート オフィス移転サポート